
Aménagement d’une plateforme logistique IDEX
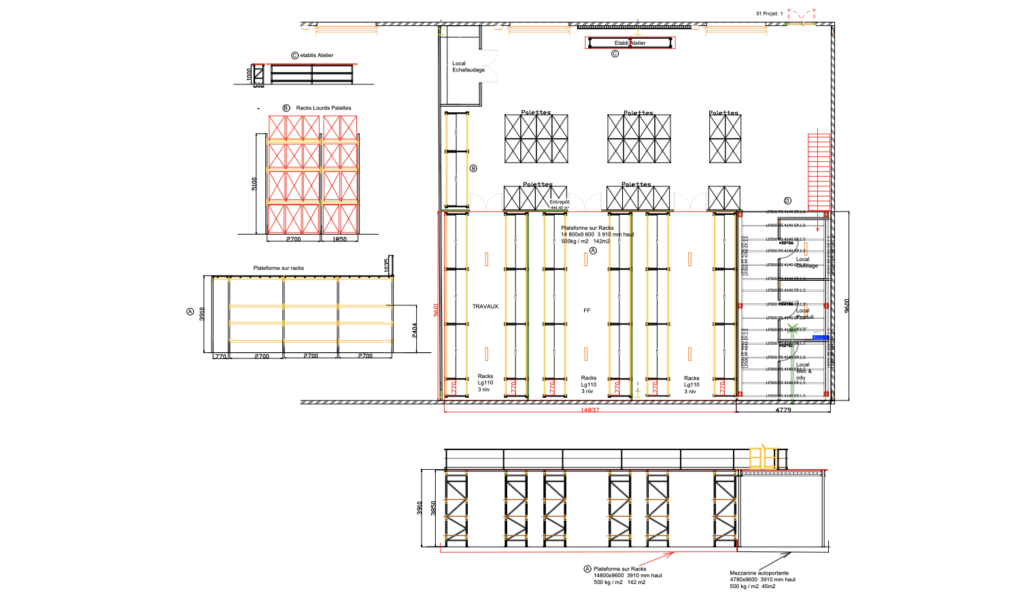
Cette plateforme logistique a été aménagée avec une mezzanine industrielle, une plateforme sur racks lourds et des rayonnages légers afin de répondre aux besoins spécifiques de stockage des pièces de retours de chantier.

Le projet

Problématique
Organiser et optimiser l’espace de stockage de la plateforme IDEX afin de structurer les flux, sécuriser les zones de travail et améliorer l’exploitation des volumes disponibles.

Objectifs
- Optimiser l’utilisation de la hauteur du bâtiment
- Structurer les zones de stockage et de circulation
- Sécuriser les accès et les opérations logistiques
- Adapter l’aménagement aux contraintes techniques de la plateforme

Solutions
Mise en place d’un aménagement combinant :
- une mezzanine industrielle,
- une plateforme sur racks,
- du rayonnage léger,
intégrant des portillons battants, des garde-corps et des grilles de sécurité, afin de garantir un stockage fonctionnel, sécurisé et évolutif.
Plan sur mesure

Résultat en image
Une question ? Un projet en tête ?
Nous vous répondons immédiatement et trouvons la solution la plus adaptée à votre espace.

